Summary
Olympia London is undergoing a major redevelopment that will turn the historic exhibition centre into a modern cultural and entertainment district. The £1.3 billion transformation includes two major new British Airways–sponsored venues: a 3,800-capacity live music arena and a 1,575-seat theatre. The project also adds over 25 new restaurants and bars, two premium hotels, a large new convention centre, and 550,000 sq ft of next-generation office space.
The site’s heritage buildings—such as the Grand Hall and Pillar Hall—are being restored and improved, while public areas are being dramatically upgraded with 2.5 acres of pedestrianised space, including a new roof-level public deck. Transport links, especially at Kensington Olympia station, are being enhanced to support increased visitor numbers.
The first major hospitality openings are expected in Spring 2026, making Olympia a new landmark destination for culture, dining, work, and entertainment in West London.
The transformation of Olympia London is one of the most ambitious redevelopment projects in the UK—an unprecedented redesign of the historic exhibition centre into a world-class arts, entertainment, business, and leisure destination. The project secures the venue’s future for generations to come by fusing its 140-year heritage with cutting-edge new facilities, extensive public realm improvements, and a vibrant mix of cultural and commercial offerings.
What Is the Olympia London Transformation Project?
This multi-billion-pound redevelopment aims to create a dynamic new district in West London. The plan preserves Olympia’s iconic exhibition halls while introducing:
- A major new music arena
- A landmark large-scale theatre
- Four new event and convention spaces
- Over 25 new dining and drinking venues
- Two premium hotels
- 550,000 sq ft of next-generation offices
- 2.5 acres of new, fully pedestrianised public space
The goal is to position Olympia as a global destination for culture, entertainment, business, and hospitality—an anchor for West London that functions day and night.

How Will the Redevelopment Protect and Enhance Olympia’s Heritage?
Olympia’s historic character is central to the masterplan. The site includes multiple listed buildings, including the Grade II* Grand Hall and Pillar Hall.
Key heritage principles include:
- Retain and Refurbish: The Grand Hall, National Hall, and Pillar Hall remain central to the site’s future, with sensitive repair and enhancement.
- Restore Iconic Facades: The original Art Deco façade of Central Hall on Hammersmith Road will be restored as the building behind it is reconstructed for modern use.
- Minimal Intervention Design: New exhibition mezzanines are engineered to maximise capacity while minimising impact on the halls’ historic wrought-iron arches.
Planning authorities assessed the impact as “less than substantial harm”—a threshold justified by significant public benefits, long-term building viability, and enhanced cultural value.

What New Entertainment Venues Are Coming to Olympia?
One of the most anticipated elements of the redevelopment is the introduction of two major entertainment venues, both sponsored by British Airways—marking the most significant new theatre and music venue development in central London in 50 years.
Key Cultural Additions
- The British Airways ARC
A major new 3,800-capacity live music venue designed to attract global artists, continuing Olympia’s legacy of hosting acts like Jimi Hendrix and Pink Floyd. - The British Airways Theatre
A state-of-the-art 1,575-seat theatre, establishing Olympia as a high-profile destination for large-scale theatrical productions. - Four New Event Spaces and a World-Class Convention Centre
Expanding Olympia’s position as one of the world’s premier exhibition and event hubs.
What New Dining and Hospitality Experiences Will Olympia Offer?
The redevelopment transforms Olympia into a major culinary destination, with more than 25 new restaurants, bars, and drinking spots opening across the site.
Opening Timeline
Most new dining venues are expected to open in Spring 2026.

Signature Hospitality Highlights
- Pillar Hall Revitalisation (by Des Gunewardena)
The Grade II historic Pillar Hall is being transformed into three major hospitality concepts:- Idalia – A 300-cover all-day restaurant featuring British dishes with international influences, plus a conservatory and terrace space.
- Pepperbird – A 70-cover speakeasy-style bar inspired by Olympia’s musical heritage.
- Upstairs at Pillar Hall – A double-height event space for 500 guests, doubling as a restaurant and live music venue on weekends.
- Incipio Group Restaurants
Four new restaurants will occupy a combined 40,000 sq ft in the development. - The Canopy Roof Garden
A 66,000 sq ft glass-canopied roof garden that brings greenery, dining, and social space to the heart of the campus.
What Hotels and Workspaces Are Included in the Redevelopment?
Where Can Visitors Stay at the New Olympia?
Two new onsite hotels bring premium accommodation directly to the venue:
- citizenM London Olympia
- Hyatt Regency London Olympia
Both hotels integrate seamlessly into the district, making Olympia a convenient place to stay for events, theatre, business travel, and tourism.
What Is One Olympia?
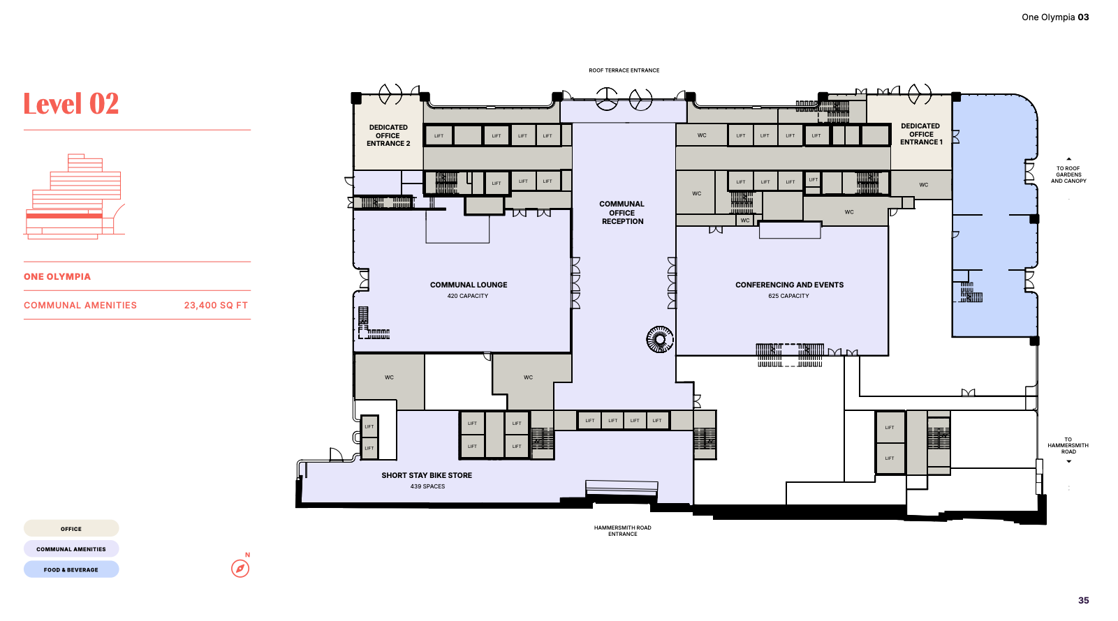
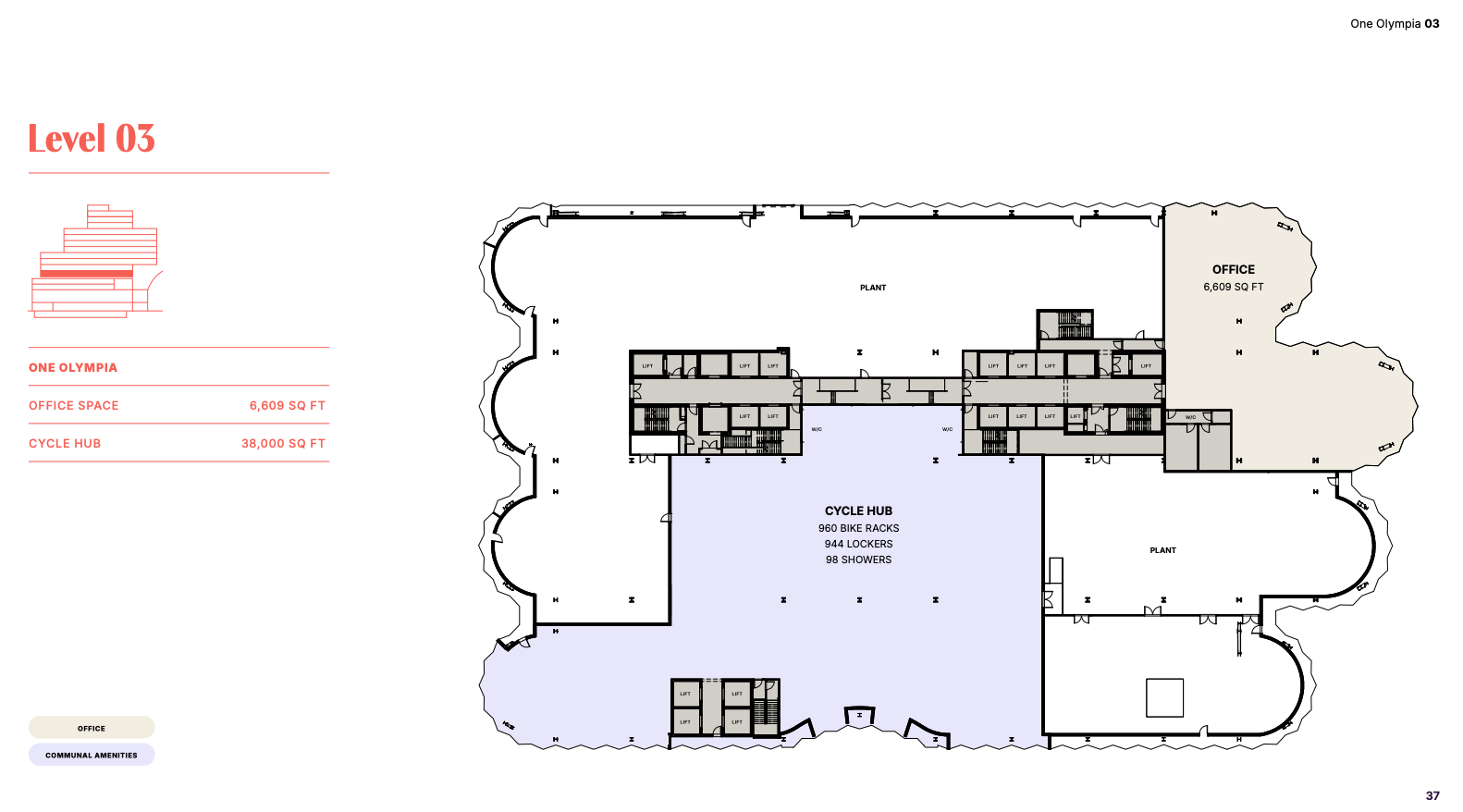
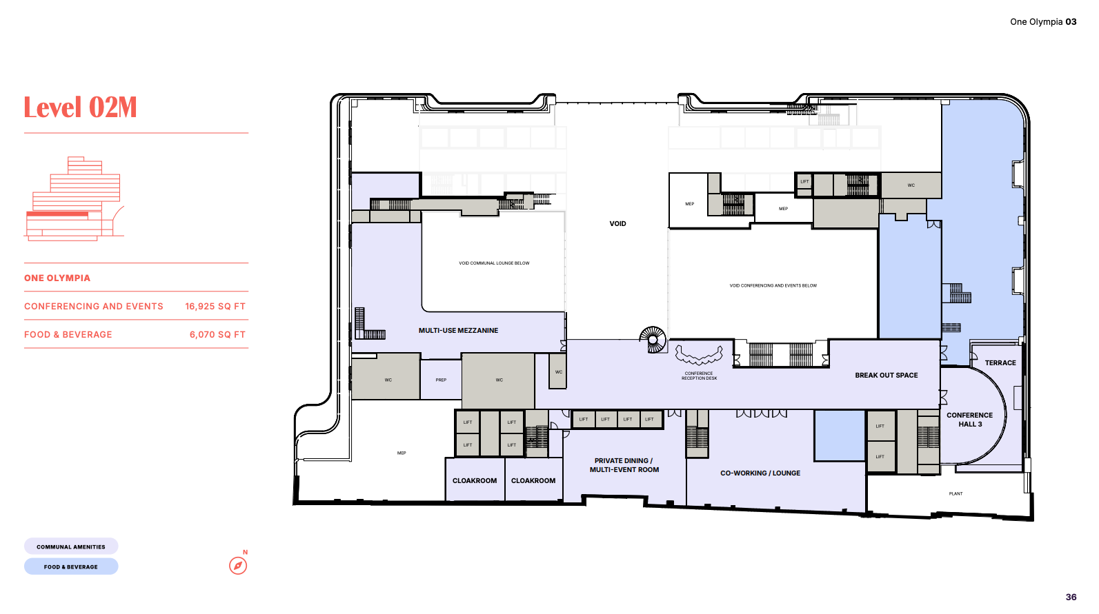
One Olympia is a flagship office building offering 550,000 sq ft of flexible workspace designed by Heatherwick Studio and SPPARC.

Key Features:
- 50,000 sq ft rooftop terraces – the largest in West London
- 6,500 sq ft communal lounge, restaurant and bar
- 23,000 sq ft conferencing and events space
- Platinum-award-winning Cycle Hub with 960 bike racks, 944 lockers, 98 showers, and towel service
- Engineered to achieve WELL Platinum, BREEAM Excellent, WiredScore Platinum, and industry-leading NABERS ratings
How Will Olympia’s Public Realm and Transport Infrastructure Improve?
Pedestrianisation and Public Space
The redevelopment introduces:
- 2.5 acres of new pedestrianised public areas
- A fully pedestrianised Olympia Way
- A spectacular roof-level public deck, positioned between Olympia’s iconic arched roofs
These improvements create a safer, more accessible, and more welcoming environment around the district.
Transport and Connectivity Upgrades
A substantial increase in visitor numbers requires major improvements, including:
- Upgrades to Kensington Olympia Station – increased gateline capacity, improved circulation, enhanced customer facilities
- £1.8 million investment in bus capacity
- Integration with Cycle Superhighway 9 on Hammersmith Road
- Car-free visitor policy, with parking limited to blue-badge and essential operational needs
Olympia’s Sustainability Goals
Olympia aims for:
- 36% CO₂ reduction beyond 2013 Building Regulations
- A central Combined Heat and Power (CHP) plant
- Air source heat pumps and energy-efficient building design
- 100% diversion of waste from landfill
- Future-proofing for district heating network connection
How Well Connected Is Olympia London?
Kensington Olympia station is rated “Excellent” for accessibility and connects the site to London and beyond.
Typical travel times:
- Shepherd’s Bush – 2 minutes
- High Street Kensington – 15 minutes walk
- Hammersmith – 9 minutes by bus
- Heathrow Airport – 38 minutes by rail
What Digital Features Will Improve the Visitor Experience?
The Olympia App will integrate digital services across the entire estate, offering:
- Digital ticketing and QR access
- Virtual queuing and concierge
- Real-time travel updates
- Food delivery to office desks
- Personalised recommendations and exclusive offers

Who Is Behind the Olympia Redevelopment?
The project is delivered by a leading consortium of developers, designers, and construction experts:
- Yoo Capital and Deutsche Finance International – Developers
- Heatherwick Studio – Concept Design
- SPPARC – Architecture
- Laing O’Rourke – Main Contractor
- Gardiner & Theobald – Project Management
Olympia London Key Facts: At a Glance
| Feature | Detail |
|---|---|
| Total Dining & Bars | 25+ new venues |
| Major Entertainment | BA ARC (3,800 capacity), BA Theatre (1,575 seats) |
| Hotels | citizenM & Hyatt Regency |
| Office Space | 550,000 sq ft (One Olympia) |
| Public Realm | 2.5 acres pedestrianised |
| Opening Timeline | Major hospitality launches in Spring 2026 |
| Location | Hammersmith Road, West Kensington |
| Transport | Served by 6 public transport lines |
One Olympia Plans & Photos














